Design Overview
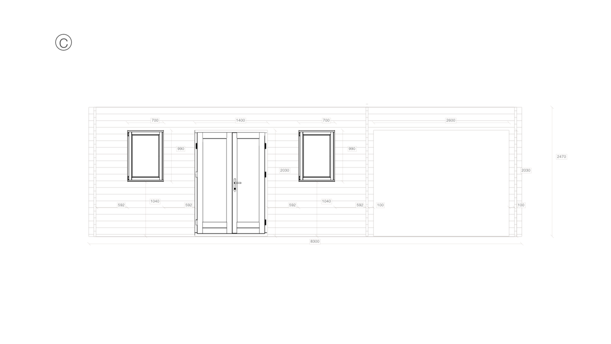
Custom-manufactured to exact specifications, the Pent Holiday Cabin 3.7×8.0 provides 29.7m² of usable floor area across overall dimensions of 4.0m x 8.3m. Internal dimensions of 3.7m x 8.0m are enclosed by 44mm solid log walls rising to a sidewall height of 2210mm, with the pent (mono-pitch) roof reaching 2470mm at the ridge. Fenestration comprises 3 windows and 2 doors arranged per the specified floor plan, all beneath a 3.9° pent roof covering 36.6m². As with every Eurodita log cabin, all dimensions, materials, and configurations are manufactured to the dealer’s exact brief. No element is taken from stock; each piece is cut to order.
Why This Configuration
The pent (mono-pitch) roof delivers a clean, modern profile with a single slope that simplifies construction and reduces material requirements without compromising weather protection. The low 3.9° pitch maintains a discreet roofline, which can be advantageous in areas with height restrictions or where planning sensitivity is a consideration.
The 44mm wall profile keeps the structure within the parameters typically associated with garden buildings and outbuildings, often qualifying for permitted development in many jurisdictions.
The 3 windows are positioned to balance natural light with wall space for furnishing flexibility. The double-door entry creates a generous opening that accommodates furniture delivery, wheelchair access, and commercial foot traffic, adding versatility to the building’s potential use.
The deep 4.0m x 8.3m plan provides generous room depth, well-suited to open-plan living or configurations requiring clear span in the primary direction.
Materials & Construction
Constructed from 44mm solid log profiles milled from slow-grown Nordic spruce, each wall section is tongue-and-groove machined for a tight wind-proof fit. The natural thermal mass of solid timber moderates interior temperature swings, keeping the space cooler in summer and warmer in winter. The honest, textured finish of genuine log construction requires no interior cladding and appeals to buyers seeking authentic timber character.
The floor system comprises 40x60mm pressure-treated bearers supporting 28mm tongue-and-groove floorboards. This combination provides a rigid, level deck capable of handling furnishing loads, underfloor insulation, and finished flooring overlays as required by the end user.
The roof structure is carried on 5 purlins of 44x130mm section, covered with 19mm boards to form a total roof area of 36.6m². The deck is supplied ready for the dealer’s choice of final covering—EPDM rubber membrane, bitumen shingles, or standing-seam metal are popular options that Eurodita can advise on.
Unlike mass-produced flat-pack alternatives, every 44mm log in this building is individually cut to project-specific dimensions by Eurodita’s CNC machinery, ensuring tight tolerances and weather-tight interlocking joints that outperform catalogue-standard products.
Eurodita mills all profiles in-house from slow-grown Nordic spruce, kiln-dried to controlled moisture levels before precision machining. This integrated supply chain ensures traceability and consistent quality.
Customisation Options
This Pent Holiday Cabin 3.7×8.0 represents one configuration within an effectively unlimited design space. As a bespoke manufacturer, Eurodita builds every project to the dealer’s exact specification—no minimum order, no fixed catalogue.
External dimensions can be adjusted freely—the current 4.0m x 8.3m footprint is not a constraint. Wall thickness can move up or down from 44mm across the full range (28mm to 220mm), and the wall profile can switch between solid log, glulam, or double-wall insulated construction.
The pent (mono-pitch) roof shown here can be changed to any supported type (apex, pent, or hip), and the pitch adjusted to suit local planning or aesthetic preferences. Sidewall height, ridge height, and overhang dimensions are all variable.
Window and door positions, sizes, types, and quantities are fully configurable. Glazing can be specified as standard double-glazed (45mm) or living-type (68mm) profiles, with optional painted finishes and crossbar detailing.
Internal partitions, electrical pre-wiring channels, additional insulation packages, and bespoke floor plans are available on request. Eurodita’s engineering team works directly with dealer partners to resolve any design requirement.
Private-Label & Private-Label Service
Eurodita offers full private-label manufacturing for this log cabin design. Every document, delivery note, and product label carries your brand — not ours. Your clients see your company name from quotation through to installation. This private-label service is available at no additional cost on all bespoke orders, making Eurodita the invisible manufacturer behind your timber building brand.
Ideal Use Cases
With 29.7m² of interior space, this design supports a broad range of applications: guest accommodation, Airbnb letting, granny annexe, home gym, or multi-room studio. The generous floor plate permits flexible partitioning to suit the end user’s needs, and dealers frequently position buildings of this scale as self-contained living spaces or income-generating rental units. The 4.0m x 8.3m footprint fits comfortably within most residential plots while providing enough room for a kitchenette, bathroom pod, or separate sleeping area.
The wide double-door entry further extends commercial potential, accommodating retail displays, workshop equipment, and accessible access in line with disability regulations.
Delivery & Production
Every component of this 29.7m² building is manufactured under one roof at Eurodita’s facility in Lithuania, with orders typically dispatched within 4–8 weeks of confirmation. The building is delivered flat-packed on a standard road-transport pallet, with every component numbered and accompanied by detailed assembly drawings. Wall sections, roof elements, floor panels, windows, doors, and all hardware are included. Eurodita coordinates transport across Europe and the UK through long-standing haulage partners, delivering to dealer depots, construction sites, or end-client addresses.
