Design Overview
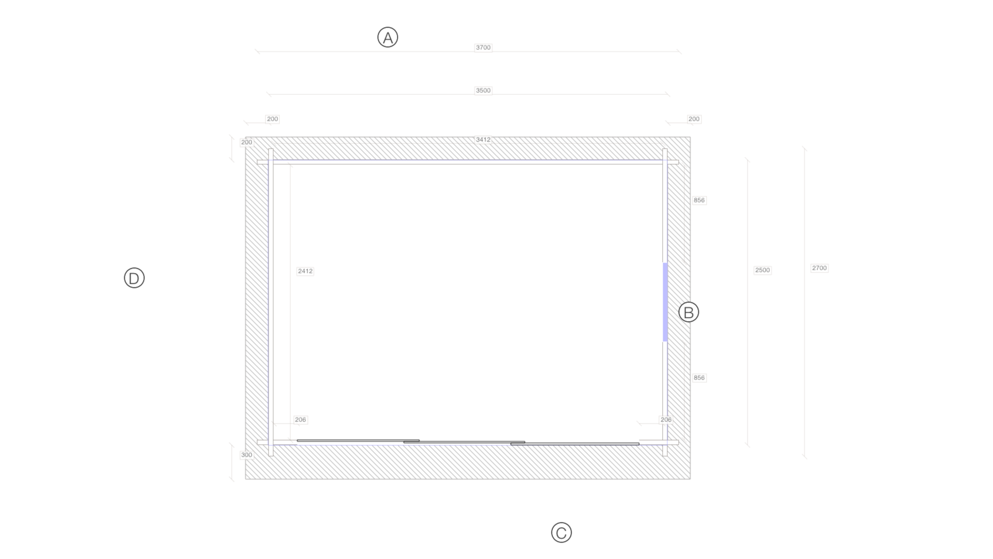
Manufactured to order, this compact design encompasses 8.2m² of interior space within 2.7m x 3.7m external walls. The 44mm solid log walls frame an internal volume of 2.4m x 3.4m with 2210mm sidewalls and a ridge height of 2470mm under the pent (mono-pitch) roof. Fenestration comprises 1 window and 1 door arranged per the specified floor plan, all beneath a 5.8° pent roof covering 11.7m². No off-the-shelf components are used in this garden room; every element is cut and machined to the project-specific measurements, delivering a truly bespoke result for the dealer and their end client.
Why This Configuration
The pent (mono-pitch) roof delivers a clean, modern profile with a single slope that simplifies construction and reduces material requirements without compromising weather protection. The low 5.8° pitch maintains a discreet roofline, which can be advantageous in areas with height restrictions or where planning sensitivity is a consideration.
The 44mm wall profile keeps the structure within the parameters typically associated with garden buildings and outbuildings, often qualifying for permitted development in many jurisdictions.
A single window provides controlled daylight while maximising uninterrupted wall area for improved thermal performance and privacy. A single aluminium sliding door slide door provides secure, weather-tight access.
The near-square 2.7m x 3.7m floor plate maximises usable area relative to external wall length, an efficient geometry that minimises material use and thermal loss.
Materials & Construction
Constructed from 44mm solid log profiles milled from slow-grown Nordic spruce, each wall section is tongue-and-groove machined for a tight wind-proof fit. The natural thermal mass of solid timber moderates interior temperature swings, keeping the space cooler in summer and warmer in winter. The honest, textured finish of genuine log construction requires no interior cladding and appeals to buyers seeking authentic timber character.
The floor system comprises 40x60mm pressure-treated bearers supporting 28mm tongue-and-groove floorboards. This combination provides a rigid, level deck capable of handling furnishing loads, underfloor insulation, and finished flooring overlays as required by the end user.
The roof structure is carried on 3 purlins of 44x130mm section, covered with 19mm boards to form a total roof area of 11.7m². The deck is supplied ready for the dealer’s choice of final covering—EPDM rubber membrane, bitumen shingles, or standing-seam metal are popular options that Eurodita can advise on.
Unlike mass-produced flat-pack alternatives, every 44mm log in this building is individually cut to project-specific dimensions by Eurodita’s CNC machinery, ensuring tight tolerances and weather-tight interlocking joints that outperform catalogue-standard products.
All timber is sourced from FSC-managed Nordic forests and kiln-dried to 16–18% moisture content before machining, ensuring dimensional accuracy and resistance to biological degradation on arrival.
Customisation Options
This Garden Shed 2.4×3.4 represents one configuration within an effectively unlimited design space. As a bespoke manufacturer, Eurodita builds every project to the dealer’s exact specification—no minimum order, no fixed catalogue.
External dimensions can be adjusted freely—the current 2.7m x 3.7m footprint is not a constraint. Wall thickness can move up or down from 44mm across the full range (28mm to 220mm), and the wall profile can switch between solid log, glulam, or double-wall insulated construction.
The pent (mono-pitch) roof shown here can be changed to any supported type (apex, pent, or hip), and the pitch adjusted to suit local planning or aesthetic preferences. Sidewall height, ridge height, and overhang dimensions are all variable.
Window and door positions, sizes, types, and quantities are fully configurable. Glazing can be specified as standard double-glazed (45mm) or living-type (68mm) profiles, with optional painted finishes and crossbar detailing.
Internal partitions, electrical pre-wiring channels, additional insulation packages, and bespoke floor plans are available on request. Eurodita’s engineering team works directly with dealer partners to resolve any design requirement.
Private-Label & White-Label Service
Eurodita offers full private-label manufacturing for this log cabin design. Every document, delivery note, and product label carries your brand — not ours. Your clients see your company name from quotation through to installation. This white-label service is available at no additional cost on all bespoke orders, making Eurodita the invisible manufacturer behind your timber building brand.
Ideal Use Cases
At 8.2m², this compact design is well-suited to garden offices, home studios, personal retreats, and secure storage buildings. Its restrained footprint makes it practical for smaller plots while still delivering a fully enclosed, weather-tight workspace. Dealers report strong demand for buildings in this size bracket from homeowners seeking dedicated work-from-home space separate from the main dwelling.
Delivery & Production
Eurodita manufactures every project in its own production facility in Lithuania, with typical lead times of 4–8 weeks from confirmed order. Delivery is flat-packed on standard road-freight pallets. All 44mm wall sections, roof purlins, 28mm floor panels, pre-fitted windows, doors, and fasteners are included as a complete kit with numbered components and illustrated assembly instructions. Eurodita coordinates transport across Europe and the UK through long-standing haulage partners, delivering to dealer depots, construction sites, or end-client addresses.

