Bespoke Design — Manufactured to Client Specifications
Design Overview
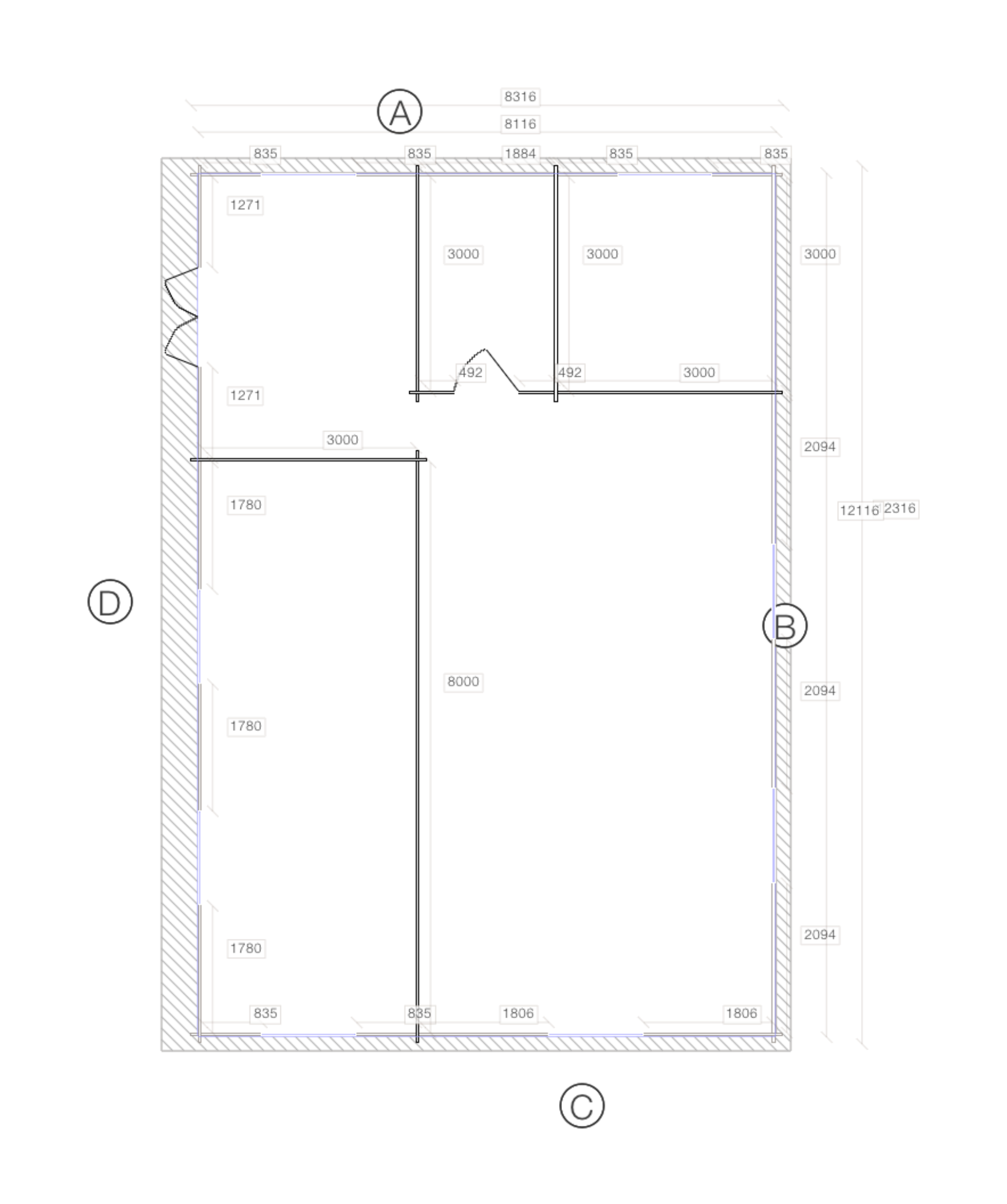
Custom-manufactured to exact specifications, the Apex Timber Residence 12.0×8.0 provides 96m² of usable floor area across overall dimensions of 12.3m x 8.3m. The 58mm solid log walls frame an internal volume of 12.0m x 8.0m with 2210mm sidewalls and a ridge height of 2860mm under the apex (gable) roof. Fenestration comprises 8 windows and 2 doors arranged per the specified floor plan, all beneath a 6.1° apex roof covering 110.9m². As with every Eurodita timber residence, all dimensions, materials, and configurations are manufactured to the dealer’s exact brief. No element is taken from stock; each piece is cut to order.
Why This Configuration
The apex (gable) roof provides balanced aesthetics with symmetrical slopes meeting at a central ridge, creating a classic silhouette that integrates well with residential surroundings. At just 6.1°, the low-profile roof minimises visual impact, an advantage where planning height limits apply.
The 58mm wall section provides a robust enclosure well-suited to three-season use, with straightforward upgradeability should full insulation be required later.
With 8 windows, the design prioritises abundant natural light, reducing daytime reliance on artificial lighting and creating a bright, inviting interior. The double-door entry creates a generous opening that accommodates furniture delivery, wheelchair access, and commercial foot traffic, adding versatility to the building’s potential use.
The near-square 12.3m x 8.3m floor plate maximises usable area relative to external wall length, an efficient geometry that minimises material use and thermal loss.
Materials & Construction
Constructed from 58mm solid log profiles milled from slow-grown Nordic spruce, each wall section is tongue-and-groove machined for a tight wind-proof fit. The natural thermal mass of solid timber moderates interior temperature swings, keeping the space cooler in summer and warmer in winter. The honest, textured finish of genuine log construction requires no interior cladding and appeals to buyers seeking authentic timber character.
The floor system comprises 40x60mm pressure-treated bearers supporting 28mm tongue-and-groove floorboards. This combination provides a rigid, level deck capable of handling furnishing loads, underfloor insulation, and finished flooring overlays as required by the end user.
The roof structure is carried on 17 purlins of 58x130mm section, covered with 19mm boards to form a total roof area of 110.9m². The deck is supplied ready for the dealer’s choice of final covering—EPDM rubber membrane, bitumen shingles, or standing-seam metal are popular options that Eurodita can advise on.
The 58mm wall profile exceeds the 44mm standard commonly found in budget garden buildings, offering improved insulation and a more substantial feel. Unlike mass-produced flat-pack alternatives, every log is precision-cut to this project’s exact dimensions.
All timber is sourced from FSC-managed Nordic forests and kiln-dried to 16–18% moisture content before machining, ensuring dimensional accuracy and resistance to biological degradation on arrival.
Customisation Options
Every parameter of this 96m² design is open to modification. Eurodita operates as a pure bespoke manufacturer: the project shown here is a starting point, not a fixed product.
External dimensions can be adjusted freely—the current 12.3m x 8.3m footprint is not a constraint. Wall thickness can move up or down from 58mm across the full range (28mm to 220mm), and the wall profile can switch between solid log, glulam, or double-wall insulated construction.
The apex (gable) roof shown here can be changed to any supported type (apex, pent, or hip), and the pitch adjusted to suit local planning or aesthetic preferences. Sidewall height, ridge height, and overhang dimensions are all variable.
Window and door positions, sizes, types, and quantities are fully configurable. Glazing can be specified as standard double-glazed (45mm) or living-type (68mm) profiles, with optional painted finishes and crossbar detailing.
Internal partitions, electrical pre-wiring channels, additional insulation packages, and bespoke floor plans are available on request. Eurodita’s engineering team works directly with dealer partners to resolve any design requirement.
Private-Label & White-Label Service
Eurodita offers full private-label manufacturing for this log cabin design. Every document, delivery note, and product label carries your brand — not ours. Your clients see your company name from quotation through to installation. This white-label service is available at no additional cost on all bespoke orders, making Eurodita the invisible manufacturer behind your timber building brand.
Ideal Use Cases
At 96m², this design enters full residential territory. Suitable as a primary dwelling, holiday lodge, or multi-let unit, it provides the space and structural specification required for permanent habitation, subject to local building regulations. Dealer partners serving the holiday park, glamping, and residential development sectors will find this scale well-suited to their project pipeline.
The wide double-door entry further extends commercial potential, accommodating retail displays, workshop equipment, and accessible access in line with disability regulations.
The generous glazing allowance makes the interior particularly appealing for studio, retail, and hospitality applications where natural light is a selling point.
Delivery & Production
Every component of this 96m² building is manufactured under one roof at Eurodita’s facility in Lithuania, with orders typically dispatched within 4–8 weeks of confirmation. Delivery is flat-packed on standard road-freight pallets. All 58mm wall sections, roof purlins, 28mm floor panels, pre-fitted windows, doors, and fasteners are included as a complete kit with numbered components and illustrated assembly instructions. Eurodita coordinates transport across Europe and the UK through long-standing haulage partners, delivering to dealer depots, construction sites, or end-client addresses.
Frequently Asked Questions
Can I customise the dimensions of the Apex Timber Residence 12.0×8.0?
Yes. Every dimension of this 96m² log cabin is fully customisable. Eurodita manufactures to your exact floor plan — width, depth, wall height, and roof pitch can all be adjusted. Window and door positions, sizes, and types are also changeable. Contact us with your requirements for a bespoke quotation.
What wall thickness does the Apex Timber Residence 12.0×8.0 use?
This garden building uses 58mm solid log walls. Eurodita offers wall thicknesses from 28mm to 220mm. Thicker walls provide better thermal insulation and structural rigidity for year-round habitation.
Is the Apex Timber Residence 12.0×8.0 suitable for year-round use?
With 58mm walls, this timber cabin is suitable for year-round use: yes, with additional insulation. Eurodita can supply insulation packages, double-glazed windows, and insulated roofing to meet your climate requirements.
How is the Apex Timber Residence 12.0×8.0 delivered?
This log cabin is delivered as a precision-cut, flat-pack kit with numbered logs for straightforward assembly. Eurodita delivers across Europe via dedicated transport. Typical production time is 4–8 weeks from order confirmation.
Does Eurodita supply under my brand (private label)?
Yes. Eurodita offers full white-label and private-label manufacturing. All documentation, packaging, and delivery notes carry your brand identity. Your clients never see the Eurodita name — we are the invisible manufacturer behind your timber building business.
